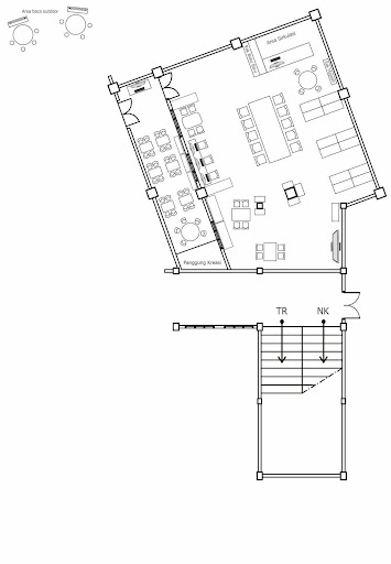
Denah Ruangan